首页 > 精品案例>户型案例>全屋记 · 136㎡云峰原著,越留白越高级!
全屋记 · 136㎡云峰原著,越留白越高级!
发布时间:2024-01-18     来源:350vip浦京集团
身处纷繁世界,渴望内心纯粹
家的温暖细腻拥有无声的治愈力
勾勒出幸福的百般模样

KLF350vip浦京集团家居本次实拍案例
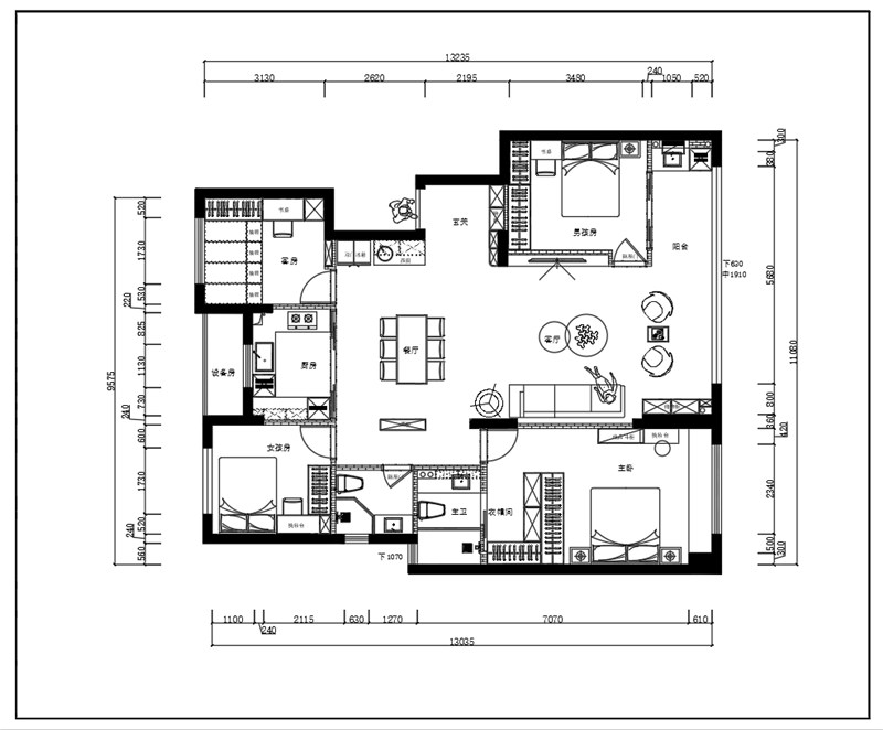
聚焦136㎡现代极简风云峰原著小区
装修以呼吸感留白保障视觉的舒适度
筑就理想之居







灯火阑珊的地方,集合了爱
岁岁年年不忘的惦念,真的很甜
整屋以纯色成就优雅,点睛细节
打造出屋主心之所向的现代极简空间


进门玄关柜与电视柜组合,连接处以圆弧收边,杏仁黄色调通铺展现高级柔和气质。玄关侧边高柜便捷挂衣,中侧穿插抽屉、背板跳色配合以栅格造型,彰显个性化美感。


电视柜以木色格栅及辅助灯光建立层次感,电视机内嵌、灰调一字型底柜视觉加深,主次分明;沙发背景墙为拼接式设计,大理石花纹、水漆背景墙、纵向格栅衔接,好看雅致。




客厅阳台打通,空间与光线协调统一。

一侧阳台柜藏露结合,收纳物件的同时可进行DIY装饰;一侧做洗烘一体式洗漱台,可与男孩房共用,满满设计感。







自然灵感的餐厨,布局有序
水洗灰与科技直纹互衬搭配
半开放式构造增强灵活性
温馨舒适的用餐环境由此实现


餐边柜整体无拉手设计,将冰箱一整个嵌入其中,视觉和谐统一;中部掏空预留清洗区,上方为餐具开放区,便捷实用;底部留空可放扫地机器人等电器。



厨房U型构造,以洗切烹盛动线提升烹饪效率,台面岩板材质耐磨耐刮防渗水。

地柜+吊柜+高柜的组合形式保障多重收纳,水洗灰门板以肤感成就质感;高度、灯光、深度等协调统一,打造出高效空间。






温暖而柔和,舒适而宁静
人们对卧室的情有独钟源于归属感
客餐厨到卧室,以悬挑柜造景
是空间里的风景线


主卧进门一字型无拉手到顶柜延伸以床头柜,区别于对侧柱形柜,茶白色柔和雅致。

床头背景墙白调与粉调拼接,加入小吊灯,彰显艺术感;内设置小型衣帽间,长柜配以铣槽拉手简约利落,储物力UPUP!




电视背景墙推门进去为男孩房,一组到顶柜床侧延伸半弧床头柜,上方做简易隔层,利落实用;芬兰白柜体好看好搭,顺着床尾迈进出门为阳台,颇有特色。



女孩房整体无主灯设计,打造出温馨柔和的氛围感;衣柜呼应于男孩房设计,兰迪米灰色低调且不失质感,床头柜上下方预留插座,方便实用。




次卧为一体式设计,床、书桌、衣柜和谐统一,以铣槽及无拉手设计使得视觉清爽。

床体及床头柜做隐藏收纳,点缀以辅助灯光,一整个惊艳住了;大飘窗、动线布局符合人体工程学设计,空间明亮通透。



全屋在色彩上以白、黄、灰基调统筹,用巧妙设计手法展现屋主的生活状态,空间干净高级,给人以轻松舒适之感。

客服 顶部